Thang máy gia đình mini là gì?
Thang Máy Gia Đình Mini là loại thang máy dành cho 1-3 người/lần sử dụng. Đây là dòng thang máy loại nhỏ tiết kiệm diện tích, phù hợp dành cho gia đình cải tạo, các nhà thấp tầng, hạn chế về diện tích.
Những tiện ích thang máy mini gia đình mang cho người dùng
- Tiết kiệm diện tích: Thang máy mini có diện tích hố thang nhỏ, không cần một không gian quá rộng có thể bố trí ở nhiều vị trí khác nhau trong nhà;
- Tiết kiệm điện: Do khung thang máy nhỏ nên động cơ luôn hoạt động ở mức vừa phải, tiết kiệm điện hơn các loại thang máy khác từ 30% đến 60% điện năng;
- Đa dạng về mẫu mã, chủng loại: Cabin thang máy được sản xuất với nhiều các option để quý khách lựa chọn. Quý khách có thể lựa chọn về vật liệu inox, màu sắc, họa tiết của từng chi tiết trong cabin thang máy;
- Dễ dàng lắp đặt: Lắp đặt nhanh chóng, gọn nhẹ trong những không gian nhỏ nhất;
- Thang máy mini có giá thành hợp lý phù hợp với túi tiền của các chủ đầu tư, hộ gia đình;
Thông số kỹ thuật của thang máy gia đình mini
Thang máy mini gia đình cũng có nhiều loại tải trọng khác nhau. Tùy từng diện tích mà chủ đầu tư mong muốn lắp đặt thang sẽ có kích thước khác nhau. Đây cũng là một điểm cộng của dòng thang máy liên doanh. (Sản xuất cabin thang máy theo kích thước thực tế)
- Kích thước hố thang: 1300 x 1100
- Kích thước cabin: 800 x 800
- Hành trình: theo thực tế
- Tốc độ: 60mp (1m/s)
- Chiều cao OH: 3600mm
- Chiều sâu pit: tối thiểu 600mm
Cấu hình thang máy mini
Động cơ: 200kg, 350kg với công suất 2.2 – 3.7 Kw, Động cơ có hộp số và không hộp số ( Động cơ tiết kiệm điện);
Hệ điều khiển: Tủ điện nice 3000 – Made in Malaysia, Hệ điều khiển PLC – Made in Japan;
Cabin thang máy mini: Loại 1-2 người: Thay đổi Option theo yêu cầu, các mẫu hoa văn, họa tiết hoặc vật liệu khác nhau;
Thang máy gia đình mini có tải trọng nhỏ nhất là 200kg, chuyển chở khoảng 1 – 2 người, tốc độ của loại thang này chỉ khoảng 30m/phút, tùy thuộc vào lựa chọn của khách hàng có thể sử dụng cả điện 1 pha hoặc điện 3 pha;
Thiết kế thang máy mini có gì khác với thiết kế các loại thang khác
Thiết kế thang máy là bước quan trọng đầu tiên trong việc xác định chính xác chất lượng sau này. Trường hợp là công trình xây mới thì đơn vị tư vấn thiết kế sẽ gặp trực tiếp trao đổi và thống nhất với bên thiết kế nhà để đưa ra phương án phù hợp nhất.
Thiết kế thang máy mini

Bản thiết kế thang máy mini và thang máy thông thường
Thang máy mini được thiết kế tận dụng tối ưu các không gian trong nhà, nhỏ gọn. Như trên hình ảnh trên bên trái là thang máy loại nhỏ, hình bên phải là thiết kế thang máy loại lớn hơn
Thang máy gia đình nhỏ nhất có kích thước là bao nhiêu?
Diện tích để lắp đặt thang máy loại nhỏ theo các tải trọng khác nhau
- Kích thước thang máy 200kg loại nhỏ: WxD: 900mm x 1500mm, pit: 300mm, OH: 3200mm
- Kích thước thang máy 300kg loại nhỏ: WxD: 1300mm x 1300mm, pit: 600mm, OH: 3200mm
- Kích thước thang máy 450kg loại nhỏ: WxD: 1500mm x 1500mm, pit: 600mm, OH: 3200mm
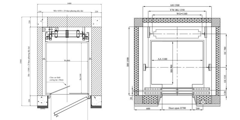
Dưới đây là bản vẽ kỹ thuật về kích thước thang máy gia đình loại mini

Thông số chi tiết kích thước, tải trọng, số người, hố pít, Overhead thang máy
Thang máy mini không cần hố pit
Hố pít thang máy yêu cầu tối thiểu là 300mm. Sở dĩ có tên gọi là thang máy không hố pit do kích thước này quá bé.
Với thang máy cửa mở tay thông thường thì hố pit chỉ từ 300mm, nhưng với thang máy cửa mở tự động thì hố pít tối thiểu phải là 600mm trở lên.
Như bảng thông số kích thước nêu trên thang máy gia đình loại nhỏ nhất có kích thước là 1300mm x 1100mm tương ứng với kích thước cabin thang máy là 800mm x 800mm, cửa thang máy loại mở tim 600mm, OH 3600mm, hố Pit sâu: 600mm.
Khung cửa bản hẹp sử dụng cho thang máy kính: Dựa vào kích thước thực tế hố thang máy để quyết định khung cửa thang máy. Loại khung cửa nhỏ nhất hiện nay có kích thước là 55cm. Một số các loại khung bản hẹp cửa là: 55cm, 60cm, 65cm, 70cm.
Phần không gian trống để lắp được một chiếc thang máy nhỏ là không nhiều. Chỉ mất khoảng 1,2m vuông là bạn cho thể bố trí được. Với thông số kích thước 1200mm x 1000mm ta có thể bố trí được thang máy dùng cho 1 đến 2 người sử dụng tại bất kỳ vị trí nào. Quá tiện lợi phải không?
Thang máy gia đình mini có giá bao nhiêu và nên mua ở đâu?
Với thị trường cung cấp thang máy đang ngày càng phát triển như hiện nay thì việc tìm ra đơn vị cung cấp và lắp đặt thang máy trở nên rất dễ dàng, nhưng để tìm ra đơn vị uy tín, chất lượng sản phẩm lâu bền lại rất quan trọng.
Đến với Thang Máy NEXGEN, với tiêu chí: ”An toàn – Chất Lượng – Cạnh tranh”, công ty chúng tôi sẽ mang đến những sản phẩm thang máy chất lượng nhất với giá thành cạnh tranh đến với khách hàng khi tham gia hợp tác cùng với chúng tôi. Khách hàng sẽ được tư vấn về quy trình lắp đặt mới hoặc lắp đặt cải tạo và Thang Máy NEXGEN có dịch vụ bảo hành, bảo trì trọn đời sản phẩm trong suốt quá trình sử dụng.
Thang Máy NEXGEN có đội ngũ kiến trúc sư tận tụy và chuyên nghiệp, có tay nghề cao và có nhiều năm kinh nghiệm trong ngành lắp đặt thang máy. Chúng tôi đã thi công và lắp đặt thang máy trên khắp cả nước, mang đến những sản phẩm đảm bảo an toàn khi sử dụng và đặc biệt đáp ứng được tiêu chí thẩm mỹ cho khách hàng.
Thang Máy NEXGEN cam kết cung cấp đến khách hàng những sản phẩm thang gia đình mini chất lượng cao với giá thành hợp lý nhất.
Giá thang máy gia đình mini là một yếu tố cốt lõi mà người có nhu cầu mua và sử dụng thang máy đặc biệt quan tâm. Việc tìm hiểu trước về giá cả giúp khách hàng có thể chuẩn bị và phân phối tài chính phù hợp nhất cho từng hạng mục trong ngôi nhà hay công trình của mình. Thang máy gia đình mini có giá dao động từ 250.000.000 VNĐ – 380.000.000 VNĐ tùy các option khác nhau.
Để nhận được báo giá chính xác nhất về giá thang máy gia đình mini, quý khách vui lòng liên hệ ngay cho chúng tôi để được tư vấn kỹ càng hơn và nhận báo giá!
Chi phí bảo dưỡng, chi phí thay thế thiết bị thang máy mini có tốn không?
Tuổi đời một chiếc thang máy thường rơi vào khoảng 10 đến 20 năm. Tùy vào cách sử dụng và bảo dưỡng thang máy mà tuổi đời thang máy cũng thay đổi theo đó. Định kỳ bảo trì thang máy thường là 1 tháng. Thời gian này có thể ít hơn theo yêu cầu của chủ đầu tư và theo chi phí bảo trì nằm trong gói nào của đơn vị cung cấp dịch vụ. Đối với thang máy gia đình loại nhỏ thường được dùng cho gia đình vì ít người sử dụng. Do vậy tuổi thọ thang máy sẽ kéo dài hơn. Thường thì ít hư hỏng sau nhiều năm sử dụng.
Thiết bị thay thế của thang máy mini loại liên doanh cũng không quá cao. Thiết bị có sẵn nên không phải chờ đợi thời gian như thang nhập khẩu nguyên chiếc.
Một số câu hỏi của khách hàng
“Báo giá thang máy gia đình loại nhỏ nhất để tiết kiệm tối đa chi phí”. Như vậy liệu có đúng không?
Trả lời: Dù là bạn xây hố thang với kích thước nhỏ nhất có thể thì giá cả thang máy mini cũng sẽ không thay đổi. Với tải trọng động cơ nhỏ hơn 350kg giá thang máy loại nhỏ không thay đổi. Kể cả khi các bạn sử dụng tải trọng 200kg hay 250kg mức giá vẫn không thay đổi . Vì vậy mỗi khi tư vấn cho khách hàng chúng tôi đều muốn để kích thước thang máy không quá nhỏ, nó sẽ ít nhiều ảnh hưởng đến không gian sử dụng sau này trừ trường hợp khách hàng yêu cầu.
”Cầu thang máy mini liệu có tốt không nếu mua với mức giá rẻ?”
Trả lời: Cầu thang máy nhỏ bạn muốn mua với mức giá rẻ là bao nhiêu? Rẻ trong mức độ vừa phải, phù hợp thì được nhưng rẻ quá thì không tốt đâu!
Liên hệ
- Công Ty TNHH Thiết Bị Thang Máy NEXGEN
- 138 Duy Tân, P. Hoà Thuận Tây, Q. Hải Châu, TP. Đà Nẵng
- 0985 230 137 | 0939 36 13 13
- hungtran.nexgenelevator@gmail.com










